轉杯竹節紗竹節長度與粗度的探討
王勤泰
(上海新型紡紗技術開發中心)
摘要:從轉杯紡成紗機理出發,通過對轉杯竹節紗形成過程中紡杯凝聚槽內纖維增量的變化分析,探討了轉杯竹節紗竹節長度和粗度的變化規律以及不同參數設置組合與竹節形態的關系。
關鍵詞:轉杯紡紗機;竹節;基紗;長度;粗度;伺服電機
轉杯紡紡制竹節紗在理論上有多種方法,但實際上最成熟的已實現工業化應用的是瑞士Amsler—Iro公司GOE裝置所采用的給棉伺服變速方法,即采用微機控制瞬間超喂給棉產生竹節。上海新型紡紗技術開發中心與上海新源科技公司聯合研制開發成功的CNRS一1型轉杯竹節紗裝置也采用這種方式。在研制過程中發現,竹節和基紗的長度與設置值相差甚遠,竹節的粗度有時也會隨長度的不同設置而有所差異。這一現象曾使我們懷疑是裝置的哪一部分出了問題,但經研究發現是轉杯竹節紗的竹節長度和粗度變化規律所致,以下就此作一淺述。
1轉杯竹節紗成紗過程分析
紡制竹節紗時,由于轉杯轉速沒有變化,轉杯凝聚槽內鋪設的纖維層數不變,細紗截面內纖維數的增加是靠給棉伺服電機的增速,以加大給棉量增加每層纖維束內的纖維量來實現的。給棉伺服瞬間加速后,雖使給棉輸出達到紡制竹節所需的纖維量,但由于輸入的新增量纖維束還是要逐層疊加鋪設,并在轉杯全周長內排列分布,故紗線的增粗是在轉杯全周長范圍內同時發生。由于紡紗是個連續的動態過程,在新增量纖維輸入使細紗增粗的同時,成紗亦在不斷地引出,故在從基紗一竹節轉換的初始階段,被剝離纖維層內累積的增量纖維十分有限,紗截面內纖維數量增加不多,竹節效果不明顯。隨著紡紗過程的延續,隨后不斷被剝離的纖維層內累積的增量纖維數逐漸增多,竹節也逐漸變粗,直至基紗一竹節轉換過程的結束,才連續紡出所設置粗度的竹節。由于轉杯內原紡基紗時滯留的相對低量纖維
表1為計算說明基紗一竹節轉換階段成紗增粗的漸變情況。
2基紗與竹節相互轉換階段成紗粗度變化規律
以上是從轉杯紡成紗原理分析了成紗的粗度變化情況,下面進一步深入探討這種變化規律。
2.1不考慮伺服電機升降速過程,轉換階段竹節粗度變化規律
不考慮伺服電機升降速過程,即認為伺服電機瞬間完成高低速給棉速度切換,且不考慮任何機械間隙停頓和滯后等因素。同時假設棉條經分梳輥充分分梳,完全及時剝離轉移,以單纖維束進入轉杯均勻鋪設;轉杯凝聚槽內纖維層呈直角楔形堆積分布,且楔形幾何形態與纖維堆積量成正比,即與成紗線密度(號數)成正比。
圖1為基紗一竹節轉換過程中纖維層楔形變化情況。△OANBN為基紗一竹節開始時纖維層楔形狀態,△OiAsiBi和△OsAsBs分別為任意時刻和基紗一竹節轉換結束時,轉杯凝聚槽內纖維層楔形形態。
由圖形幾何關系不難得出任意引紗長度xli時的竹節粗度Hsli為:
即在基紗一竹節漸變過程中,竹節粗度是原基紗粗度與增量粗度之和。增量粗度△Hsli隨著引紗長度Xli的增加而增大,當Xli=πDr,即一個轉杯周長時,竹節粗度Hsli達最大值Hs,即基紗一竹節轉換結束,進入竹節粗度值紡紗。而增量粗度△Hsli正比于(Hs—HN),表明竹節與基紗的倍數越大,增量粗度增加越快。
同理,從圖2竹節一基紗轉換階段凝聚槽內纖維層楔形變化,
式中:△Hs2i——竹節→基紗任意時刻減量粗度號數(tex);
x2i——竹節一基紗任意時刻引紗長度(mm)。
2.2考慮伺服電機升降速過程,轉換階段竹節變化規律
以上是假設基紗
竹節轉換過程中,伺服電機速度瞬間完成切換的情況,實際上不管這種切換速度有多快,總有一段加速或減速的過程,而這種短暫的升降速變化對轉杯竹節紗形態變化有一定的影響。現先討論基紗一竹節伺服電機加速過程中竹節粗度的變化情況。
假設伺服電機以等加速升速(其余上述假設不變),那么就有以下關系式:
伺服電機轉速升速倍數,即竹節精度倍數K為:
那么,伺服電機加速過程中,轉杯凝聚槽內每層纖維的增量數△m為:
式中:
——每層平均纖維根數(根/層);
故伺服電機加速過程中轉杯凝聚槽內單位時間內的增量纖維數△Mt為:
式中:b——單位時間內鋪設的纖維層數(層/ms);
于是在伺服電機加速過程中,任意時刻成紗截面內的累計增量纖維數△Msi為:
由上式可得伺服電機加速過程中任意時刻成紗所獲得的增量粗度△Hsli為:
而伺服電機加速時間t與引紗長度xli有如下關系:
式中:Xli——伺服加速期任意時刻引紗長度(mm)。
所以用(13)式代入(12)式,可得用引紗長度表述的伺服加速期內增量粗度△Hsli為:
式(12)和(14)表明,伺服電機加速過程中,竹節粗度增量是加速時間
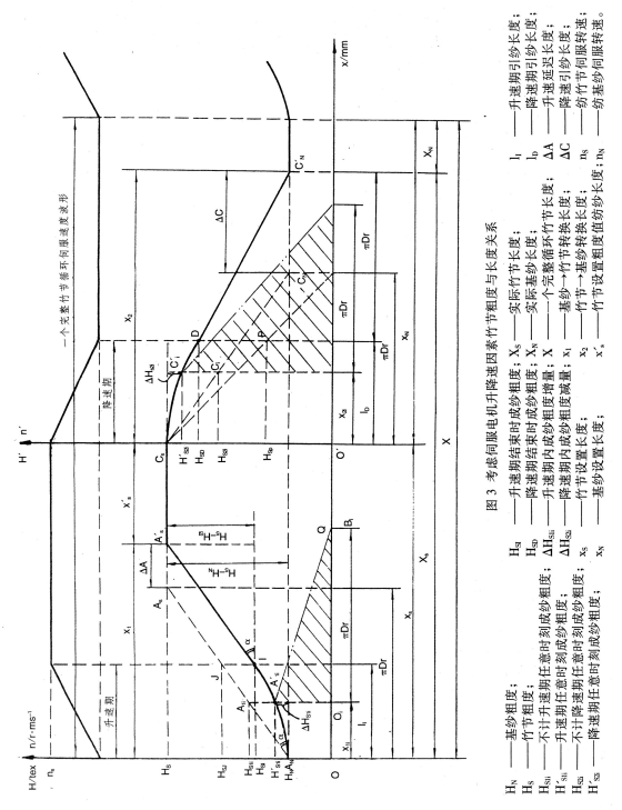
由此可得伺服電機加速升速過程中,成紗的竹節粗度Hsli為原基紗粗度HN和增量粗度△Hs1i之和(參見圖3):
伺服電機在加速升速結束后即進入紡竹節狀態,此時轉杯凝聚槽內纖維增量速率與不考慮伺服電機升降速度時相同,所以在圖3中可以從加速升速結束點作ANAS的平行線IA′s,就可求得基紗→竹節轉換結束點A′s的位置。由圖3可見,由于伺服電機升速加速過程的影響,基紗→竹節的轉換長度有所延長,其延遲長度△A和基紗一竹節轉換長度x1由以下公式求得。
式中:1I——伺服升速加速期引紗長度(mm);
HsT——伺服升速加速期結束時竹節粗度(tex)。
同理,假如伺服電機在竹節一基紗轉換初期是以等減速加速度完成速度切換,那么:
式中:a2——伺服電機減速加速度(r/ms2);
t——減速降速時間(ms)。
用相同方法可得出竹節一基紗伺服電機降速過程中,任意時刻成紗粗度Hs2i′的計算公式為:
由公式(20)、(21)可知,在整個伺服降速期內竹節粗度呈兩次函數遞減變化。從D點起伺服電機降速完成進入紡基紗低速給棉。正如以上成紗原理分析所述,由于此時轉杯凝聚槽內還殘留著降速期結束時的HsD高量纖維層,要實現基紗粗度紡紗,必須待它們完全被剝離,即再經過一個轉杯周長的引紗才能徹底完成這種切換。所以,實際竹節一基紗轉換結束點延遲到C′N,而非不計伺服降速過程時的CN點。這兩點間的引紗長度即為伺服降速延遲長度AC,其值為:
所以,竹節→基紗的實際轉換長度x2為:
<
由圖3關系還可得出竹節長度、基紗長度和一只竹節循環長度之計算公式:
公式(25)、(26)、(27)表明,實際竹節長度是竹節設置長度、轉杯周長和伺服降速延遲長度之和;(緊接著的下一只)基紗長度為該基紗設置長度與轉杯周長和上一只竹節伺服降速延遲長度之差;一只完整的竹節循環長度是竹節長度和(緊接著的)基紗長度之和。由上述分析可知,伺服電機的升速過程不影響竹節的總長度,但它縮短了竹節粗度值紡紗長度(當xs>x1)時,并使得基紗→竹節轉換初期的竹節粗度增加變得更為平緩。伺服電機的降速過程會增加竹節的總長度和縮短下一只基紗紡紗長度,并使得竹節一基紗轉換初期竹節粗度下降趨緩,這在一定程度上補償了因伺服升速延遲使竹節粗度值紡紗長度的縮短。
以上是伺服電機在等加減升降速情況下的結論。在實際工作中,伺服電機的升降速過程并非全程恒等加減速變化,為了減少伺服過沖,在加速過程的末端速度變化有所趨緩,使竹節變化更為平緩,但不影響上述推論。
表2是根據以上推導公式,對紡58.3tex(10s)4倍竹節紗,引紗速度64.7m/min,伺服升速時間40ms,降速時間50ms時,計算得出的伺服升降速結束時成紗粗度與不考慮伺服升降速因素成紗粗度的對比結果。由表2可見,因伺服升降速因素的存在,基紗與竹節轉換初期成紗粗度變化更為平緩,其基紗與竹節轉換長度都有所延長。
表3為上述紡紗品種與條件下,基紗設置長度840mm,竹節設置長度210mm一只竹節循環竹節紗,用烏斯特曲線圖測量法(見圖4)所測得的實際基紗長度XNi和循環長度Xi值。
由實測結果計算的竹節平均長度
為:
而由公式(25)計算的竹節理論長度Xs為:
Xs=xs+πDr+1D=210+π×66+53.9=471.
由此可見,實際竹節長度與理論推導極為接近,其絕對誤差為2.3mm,相對誤差O.5%,說明上述推論是正確的。
3竹節參數設置與竹節長度、粗度和形態的關系
上述有關竹節長度、基紗長度計算公式可作為竹節參數設置的依據,但是它們之問的不同組合將會產生不同粗度和形態的竹節,以下分三種情況予以討論。為討論方便,不考慮伺服升降速過程,并假定竹節設置粗度不變。
3.1竹節設置長度大于等于轉杯周長(xs≥πDr),基紗設置長度大于等于轉杯周長(XN≥πDz)
這是一種最為常見的設置方案,從圖5關系中不難得出實際竹節長度和基紗長度值為:
Xs=xs+πDr (28)
XN=XN-πDr (29)
在這種設置情況下,竹節最大粗度與設置值相同,即均為Hs。
3.2竹節設置長度小于轉杯周長(xs<πDr),基紗設置長度大于等于轉杯周長(xN≥πDr)
由圖6可知,竹節長度和基紗長度同第1種情況,即:
Xs=xs+πDr
XN=XN-πDr
但是實際最大竹節粗度Hs′小于設置值Hs,其值為:
之所以最大竹節粗度小于設置值,是因為竹節設置長度小于基紗一竹節轉換最短長度(一個轉杯周長長度)。當竹節增粗尚未達設置值時,伺服即轉為紡基紗低速給棉,于是竹節由增粗轉為變細,從而無法達到設置值。但基紗粗度因其長度設置滿足轉換長度條件,故能得以保證。這種長度
運用公式(30)也可反過來求得為獲得較短竹節長度,采用小于轉杯周長竹節長度設置時的竹節粗度計算公式:
式中:Hso——小于轉杯周長短竹節長度設置時,竹節粗度設計號數(tex)。
Hs′——實際所需竹節粗度號數(tex)。
此式對于BD200系列紡紗器采用大中轉杯紡制粗度不大的較短竹節有實際意義。
3.3竹節設置長度大于等于轉杯周長(xs≥πDr),基紗設置長度小于轉杯周長(xN<πDr)
圖7顯示了連續兩只竹節長度與粗度變化關系。由于第一只竹節基紗長度小于竹節一基紗轉換長度,致使第一只竹節還來不及恢復到紡基紗狀態,伺服又開始轉為紡第二只竹節,故呈現雙竹節狀。其長度和粗度有如下關系式:
由于轉杯紗竹節很長,這種雙竹節將使竹節更長。
4結論
(1)由于伺服電機升降速過程的存在,使竹節與基紗的轉換過程有所延長。實際竹節長度為竹節設置長度、轉杯周長和伺服降速延遲長度之和;實際竹節粗度與竹節設置長度有關。
(2)采用小于轉杯周長(實際應為基紗→竹節的轉換長度)竹節長度設置時,能獲得相對較短的竹節,但實際紡紗粗度小于設置值。小于轉杯周長長度越長,竹節粗度與設置值差異越大。
(3)不同的竹節長度和基紗長度設置組合,會產生不同粗度和形態
參考文獻
[1]上海紡織工學院棉紡教研室主編.棉紡學(下冊).北京:紡織工業出版社,1981:439~446.
[2]沈天培譯.氣流紡紗工藝過程.北京:紡織工業出版社,1990;52~58.
相關信息 







推薦企業
推薦企業
推薦企業