- [新聞]-->黃石經緯亮相2012ITMA紡機展
- [新聞]-->黃石經緯亮相2012ITMA紡機展
- [新聞]-->市長楊曉波會見經緯紡機總經理姚育明一行
- [產品]-->JWLM1366型圓網印花機
- [產品]-->黃石經緯紡機意大利美佳尼UNICA圓網印花機
- [產品]-->JWLM8000壁紙四色圓網印刷聯合機
您所在的位置:紡機網 >> 黃石經緯紡織機械有限公司 >> MA043E圓式蒸煮反應箱
產品推薦
產品分類
聯系方式
- 聯系人:姚君,王家春
- 郵 箱:845268048@qq.com
- 地 址:湖北省黃石市下陸大道72號
- 手 機:15807236760,13986580227
- 電 話:
- 傳 真:86-0714-5331898
- 網 址:http://www.jmfzs.com/web/14894
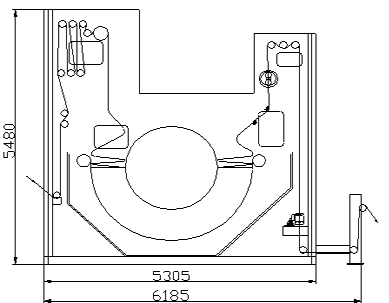
MA043E圓式蒸煮反應箱
發布時間:2011-03-10
MA043E圓式蒸煮反應箱
>> 用途
本機適用于棉、滌棉和混紡織物進行平幅退漿、煮練漂白之用。
>> 主要參數及特征
- 型式:半圓履帶式
- 車別:L或R
- 公稱寬度mm:1600、1800、2000
- 公稱速度m/min:100
- 容布量m :6000 (120g/m2)
- 堆置時間min : 60
- 蒸汽壓力MPa: 0.3
- 最高汽蒸溫度℃:100
- 傳動方式:交流電機傳動
- 外形尺寸(L×W×H)mm:6185×(W+2279)×5480
>> 機器結構
- 箱體:箱體用不銹鋼板焊接而成,分上中下三層,外表面有保溫層。箱底保持一定液面(液面高度由用戶根據工藝需要決定),由直接加熱管進行加熱。
- 進出布封口:本機進布采用汽封,封口兩旁有自然拔風道;出布采用液封。
- 預熱區:織物由導布輥和多棱輥從汽封口拉進汽蒸預熱區,由多孔管噴射飽和蒸汽進行加熱。
- 落布裝置:織物經預熱,由折布機構折疊堆置在R型履帶和大錫林之間進入蒸煮區。
- 蒸煮區:由折布機構折疊堆置在R型履帶和大錫林之間的織物,被汽蒸、煮沸、汽蒸。織物在該區作用時間由容布量決定,其中蒸與煮的時間分配由箱底液體液位高度決定。
- 設有液位自控、容布量自控及出布段堆置高度自控裝置,自動化程度高。
- 反應箱出布段設有主動擴幅裝置一套及彎管兩根,防止出布起皺。
.jpg)






